subvisual



소극장 시설 및 도면도



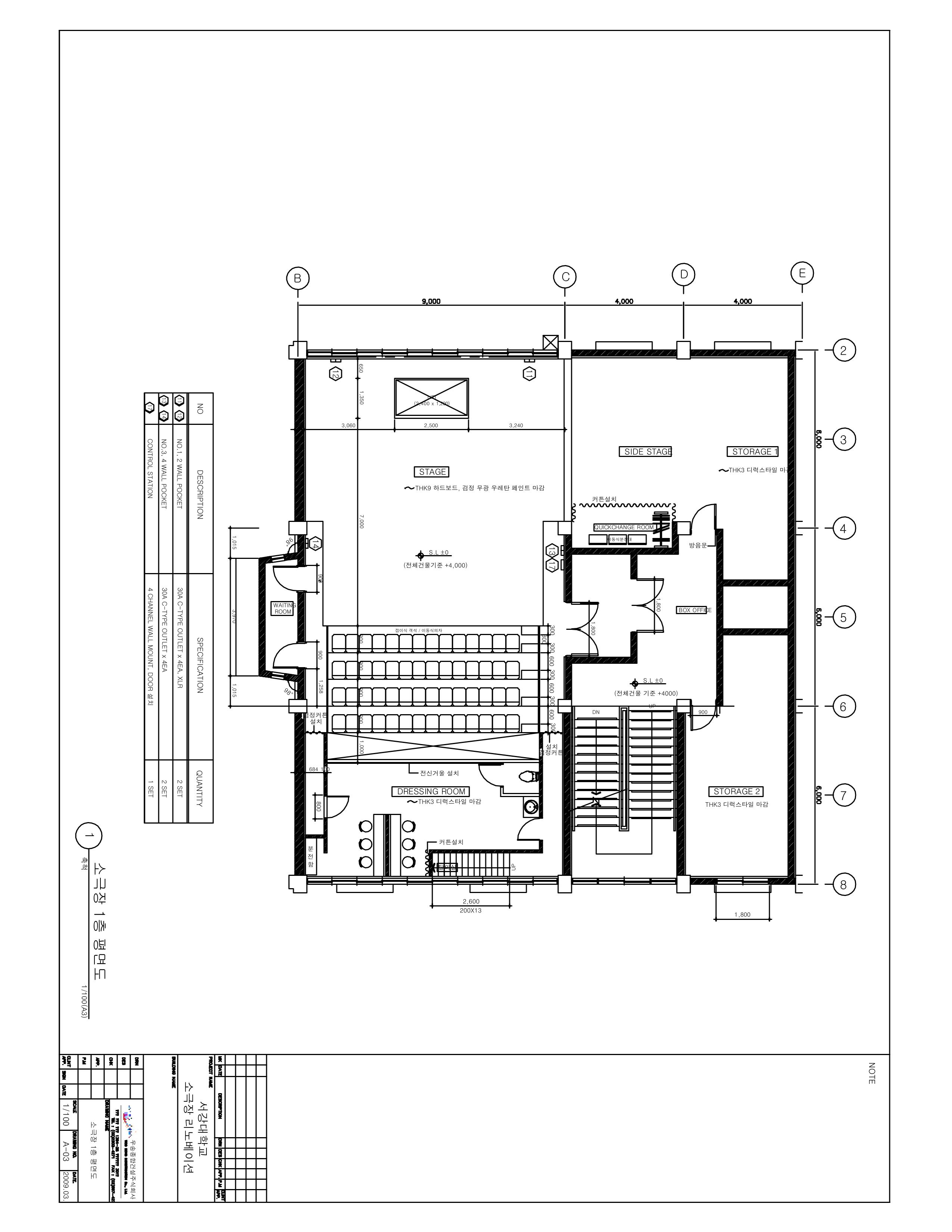
총면적 230m²(70평)
높이 8M
무대면적 90m²(27평) (객석수납시 120m²)
객석 수 100석(가변식)
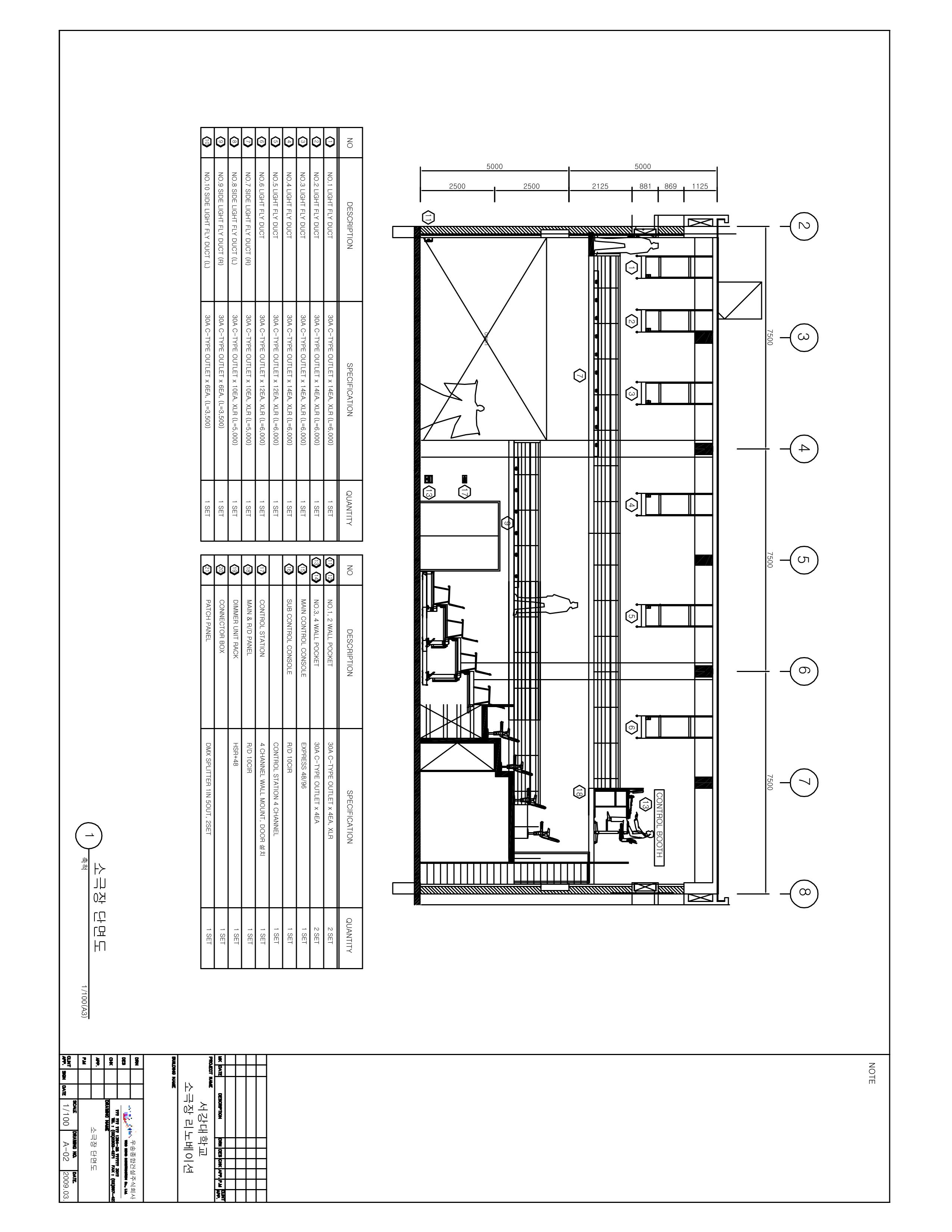
Console ETC Express
Dimmer system 96채널 ETC dimmer
Audio mixer Allen&Heath 24ch 5.1ch 서라운드 음향

 




소극장 평면도, 단면도

 

 

    

평면도



단면도




소극장 조명 회로도, 바닥 회로도

 

 

 

조명 회로도


 

바닥 회로도





메리홀 소극장 도면

 

소극장 CAD 도면